机加工|墙纸|涂料|含油乳化液|油墨污水处理设备-苏州蓝川环保工程有限公司
客服热线
  • 首页
  • 关于我们
  • 新闻资讯
  • 技术服务
  • 工程业绩
  • 招贤纳才
  • 联系我们
  • 水务处理
  • 气务处理
水务处理当前位置:苏州蓝川环保工程有限公司 > 技术服务 > 水务处理 >

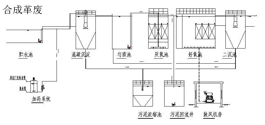
合成革废水

时间:2019-11-07 09:37 作者:admin 点击:次

  • 上一篇:含铅废水
  • 下一篇:化工废水

Copyright © 2016 All Rights Reserved 苏州蓝川环保工程有限公司 版权所有

地址:江苏省苏州市吴中区枫瑞路198号 电话:13616205335 苏ICP备16003201号-5